Универсальное помещение
Железнодорожная, 2д Показать на карте
Железнодорожная, 2д Показать на карте
Старый город
Северодвинск
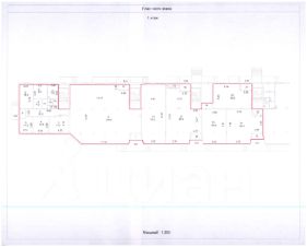
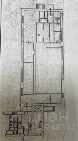
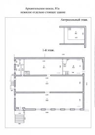
— Продается нежилое помещение общей площадью 167 кв.м, расположенное на 1 этаже 4-х этажного жилого дома.— Помещение ранее использовалось под офис банка— Помещение расположено на первой линии улицы Железнодорожная , в центре деловой активности, в районе с плотной жилой застройкой, напротив железнодорожной станции.— Активный пешеходный и автомобильный трафик.— Помещение имеет отдельный вход с улицы Железнодорожная и выход во двор.— Планировка: открытая, офисная отделка, Высота потолка 3.7м (!).— В помещение выполнен качественный ремонт,— Безопасность: Круглосуточный доступ, Видеонаблюдение.— Установлены кондиционеры/ сплит-системы,— Санузел, кухня,— Помещение оборудовано централизованным водоснабжением, канализацией, электроснабжением,— Приточно-вытяжная вентиляция, Центральное отопление,— Электрическая мощность 10 кВт. (можно увеличить),— Возможность размещения вывески на фасаде здания,— Все городские тарифы на коммунальные услуги,— Помещение подходит под любой вид деятельности: под размещение магазина, медицинского/ стоматологического/ косметологического центра, кафе/ пиццерии, аптеки, салона красоты.
167 м2
- Показать контакты
- Добавить в избранное
167 м2
2 171 000 000
13 000 000 /м2
