Продается готовый арендный бизнес.
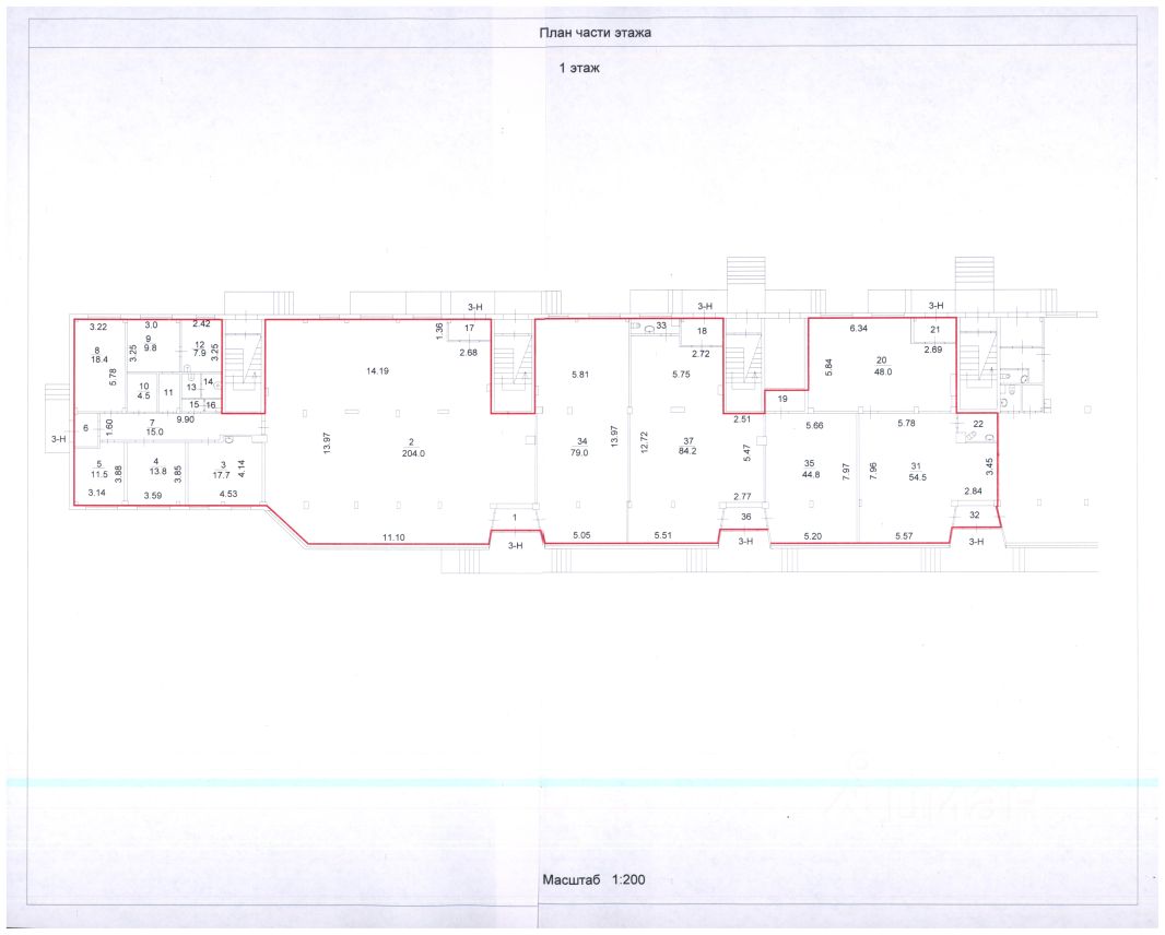
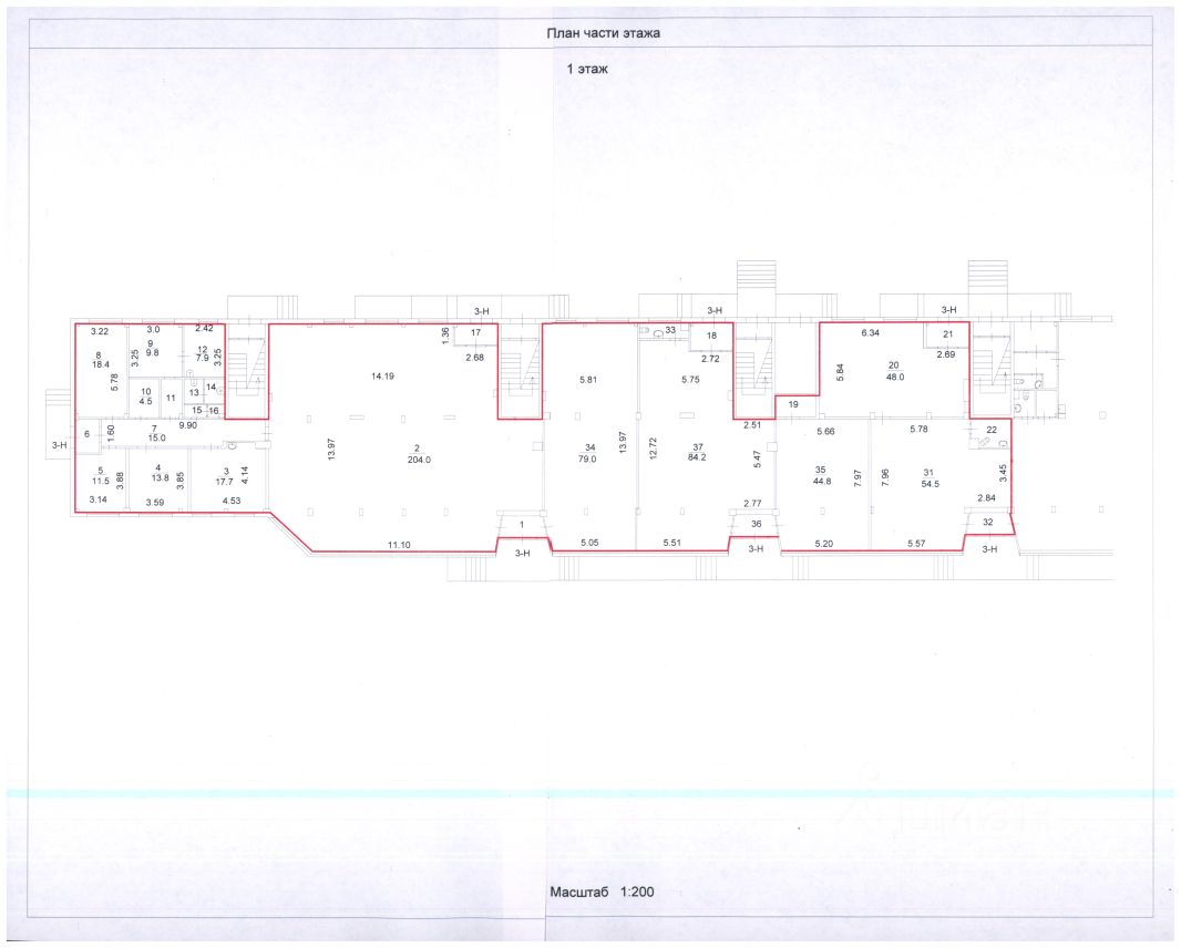
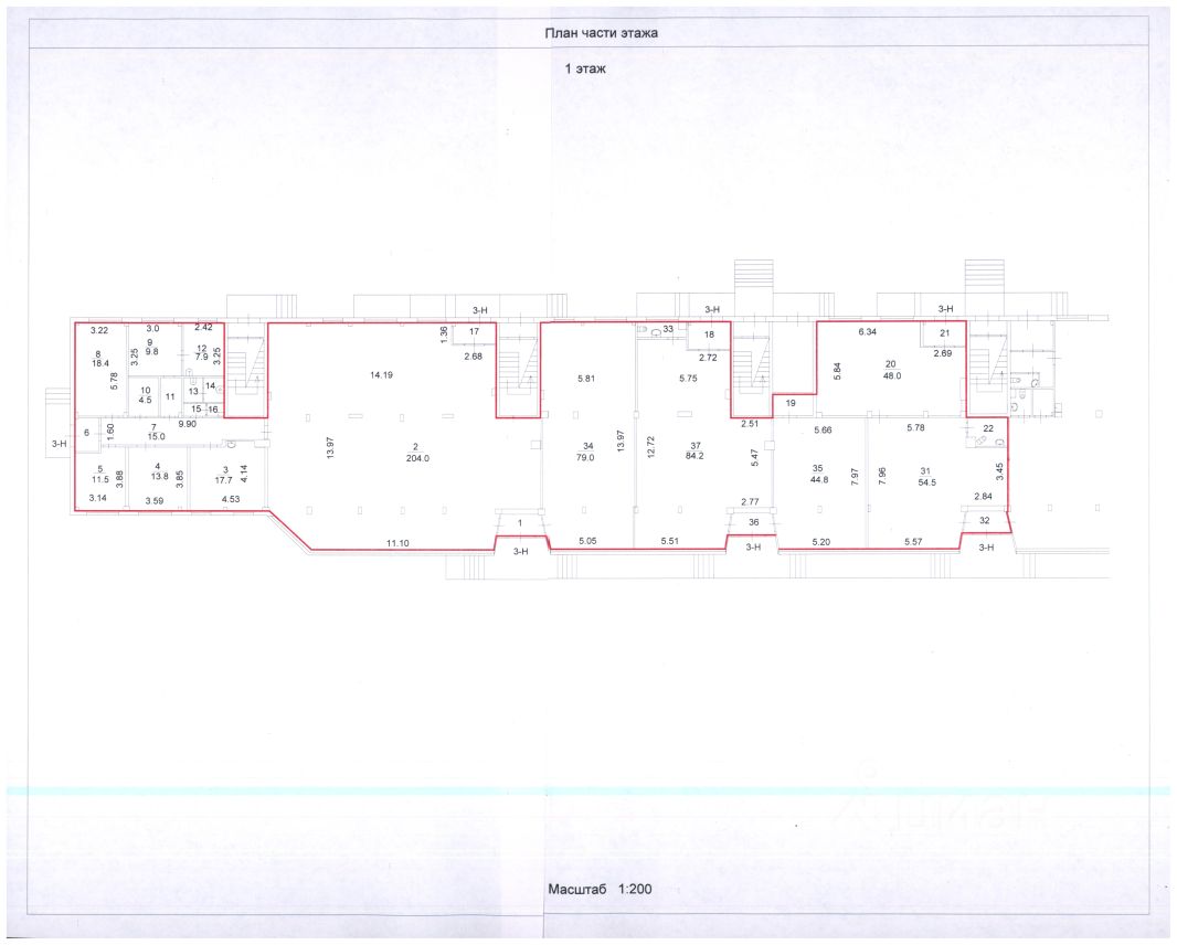
В собственности: торговое помещение площадью 680 кв.м., том числе: торговая: 520,7 кв.м., офисная: 141,2 кв.м., вспомогательная: 18 кв.м.
Суммарная площадь, сданная в аренду: 582,2 кв.м. Свободных площадей на момент публикации нет.
Основные арендаторы: Черный кот, ''Апрель'', Lamoda, центр сухофруктов.
Действующие договора аренды предусматривают ежегодную индексацию арендной ставки.
Срок окупаемости инвестиции: 8 лет.
Год постройки здания: 1971.
Фундамент: ж/б ростверк по ж/б сваям.
Наружные стены: панель.
Перекрытие: железобетонное
Общее количество входов: 4
Количество запасных (загрузочных) выходов: 3
Панорамное остекление фасада.








