Готовый арендный бизнес с якорным федеральным арендатором и долгосрочным договором аренды. Объект права: нежилое отдельно стоящее здания и земельный участок. Здание располагает отличными подъездными путями, вместительной парковкой, расположено на первой линии. Оборудовано тремя независимыми входами, для торгового зала первого этажа предусмотрен загрузочный модуль. Обеспечено всеми коммуникациями, включая центральное отопление, холодное и горячее водоснабжение, приточно-вытяжную вентиляцию. Предусмотрен собственный тепловой узел. Земельный участок 1327 кв.м. в собственности. Первый этаж здания занимают супермаркет торговой сети Магнит, салон цветов 29 роз.
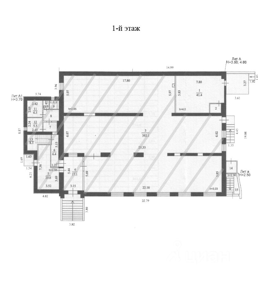
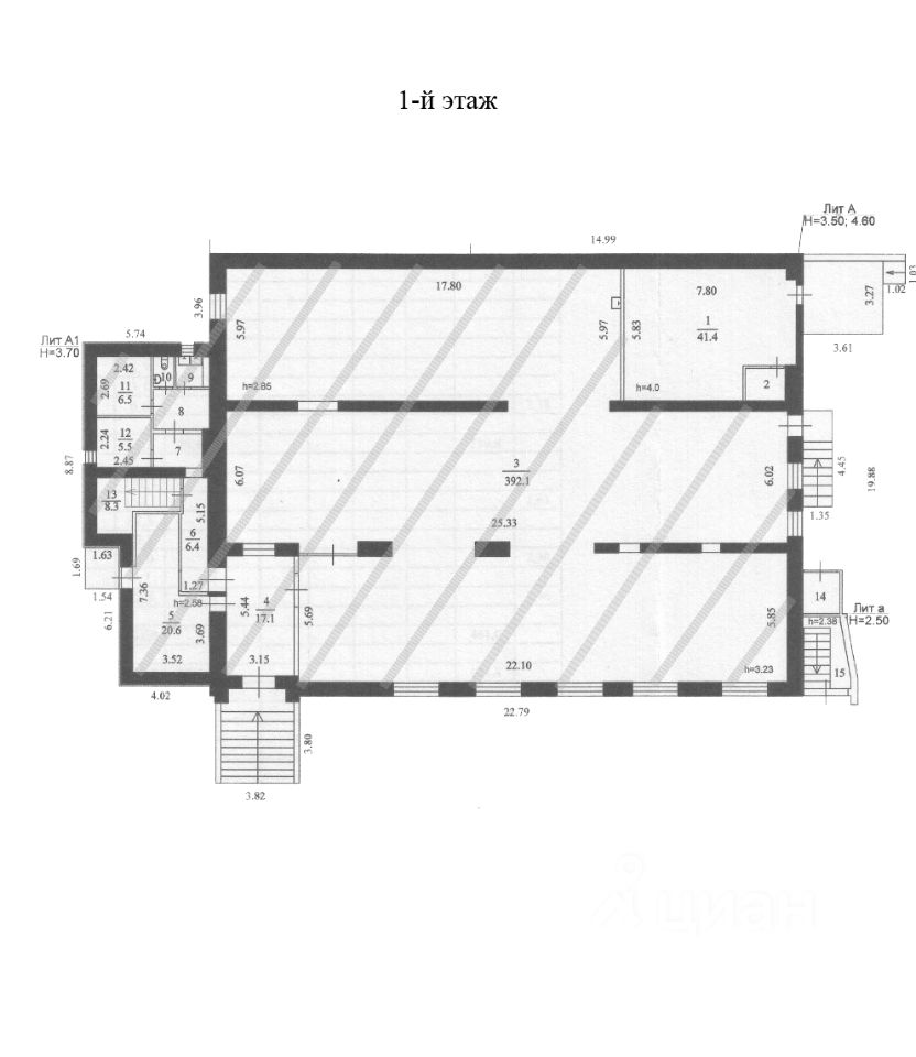
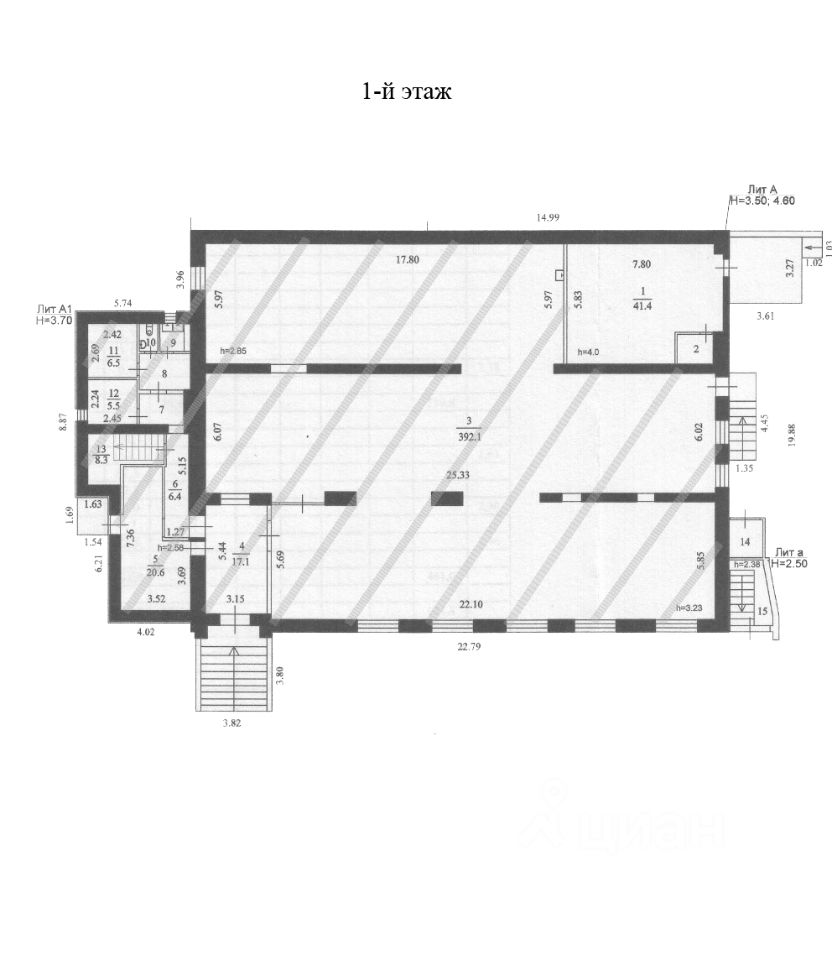
Готовый арендный бизнес с якорным федеральным арендатором и долгосрочным договором аренды. Объект права: нежилое отдельно стоящее здания и земельный участок. Здание располагает отличными подъездными путями, вместительной парковкой, расположено на первой линии. Оборудовано тремя независимыми входами, для торгового зала первого этажа предусмотрен загрузочный модуль. Обеспечено всеми коммуникациями, включая центральное отопление, холодное и горячее водоснабжение, приточно-вытяжную вентиляцию. Предусмотрен собственный тепловой узел. Земельный участок 1327 кв.м. в собственности. Первый этаж здания занимают супермаркет торговой сети Магнит, салон цветов 29 роз. Предложение можно рассматривать как приобретение готового арендного бизнеса с якорным федеральным арендатором. Год постройки здания: 1987, год реконструкции 2006. Общая площадь здания: 981,8 кв.м., в т. ч.: - первый этаж 520,8 кв.м., - подвал .. 461,0 кв.м., Фундамент: ж/б ростверк по ж/б сваям. Материал стен: кирпич в основной части. Отделка наружных стен: керамогранит. Полы: керамогранит в торговых залах первого этажа и подвала. Высота потолков первого этажа: 3,5 м. Высота потолков подвала: 2,6 м. Вентиляция: приточно-вытяжная Система кондиционирования: + Разрешенная эл. нагрузка: 100 кВт.